Maison PL-NCH-N & P-RR--R- - Christophe Humbert Architecte

Maison PL-NCH-N & P-RR--R- / Extension - Rénovation

 

Nogent sur Marne  (94) 2020 - 23

 

Maître d’ouvrage : privé.

 

Surface Traitée : 170 m²  (Rénovation + Extension)

 

Mission :

marché privé, mission complète (zone de protection patrimoniale) 

 

Programme :

 

"Revoir la configuration de la maison pour que chacun des enfants ait sa chambre, les parents leur propre maison dans la maison.

Ouvrir sur le jardin de manière plus fluide , libérer les espaces pour créer de grandes pièces à vivre "

Comment :

 

 

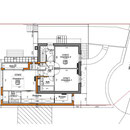
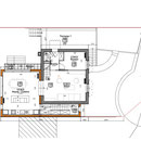
L’extension a tout naturellement trouvé sa place à l’arrière de la parcelle accolée à la limite séparative Nord en favorisant l’exploitation du jardin dans sa partie la mieux exposée.

 

Elle est composée de 2 volumes simples, sur 2 niveaux  :

 

-Un volume principal couvert par une toiture tuiles à 2 pans reprenant les pentes et  la typologie de la maison existante. Ce volume est tourné et ouvert vers le jardin.

 

-Un volume secondaire plus bas, long et étroit, couvert par une toiture terrasse végétalisée et implanté en limite Nord, accolé en partie au bâtiment tiers voisin. Ce volume, que l’on peut lire comme « annexe », est implanté en retrait de la façade principale afin de laisser à cette dernière  toute son importance et hiérarchiser l’antériorité des constructions.

 

Il vient combler, un passage latéral, qui n’a actuellement d’autre fonction que de stocker vélos et débarras en tous genres. Cette partie d’extension permettra de le requalifier.

 

A l'étage les espaces parents et enfants sont clairement identifiés. Une maison sous les toits  dans la maison pour les parents.

Au niveau 0, une entrée basse et haute permettant une circulation fluide  et ouverte vers l'extérieur. de grandes baies vitrées permettent un éclairement maximal et une échappée visuelle vers le jardin paysagé. Les espaces bien que très ouverts permettent par le jeu d'un zoning étudié de garder une intimité dans chaque pièce.

 

L’intervention s'est faite en zone de protection patrimoniale.

 

 

 

 

Retour en haut de page Version standard